Tea Ceremony — Elegant Web Section

Japanese Culture

The Tea Ceremony

An intimate practice of hospitality, aesthetics, and mindfulness.

The tea ceremony is a traditional Japanese culture in which guests are entertained by being served a meal and matcha tea is prepared and served in front of them. It is also said to be a comprehensive art form, as it requires not only knowledge of tea but also a deep knowledge of hanging scrolls, flowers, pottery, and tools.
Chadō Matcha Wabi-sabi
Packages

Casual Tea Room Experiences

Choose a lighter, faster way to bring Chadō into your life.

Home Tea Room Kit

Recreate a tea room inside your current home for a refined, intimate experience.

Garden Assembly Kit

Assemble a small tea room in your garden for outdoor gatherings and seasonal ceremonies.

  • Materials crafted by artisans in Kyoto—the home of the tea ceremony—and in Matsuyama City, home to Dōgo Onsen, Japan’s oldest hot spring and an inspiration for the bathhouse in Studio Ghibli’s Spirited Away.
  • Please request assembly from a craftsman experienced with wooden frame construction (e.g., Timber Frame Guild professionals).
  • We also offer complete tea ceremony kits so you can enjoy the ceremony right away.
Not included: electrical work, lighting fixtures, or plumbing.
Custom Orders Square Pillars

If you would like options beyond these packages, please contact us. The standard package uses square pillars with subtly chamfered (surfaced) corners.


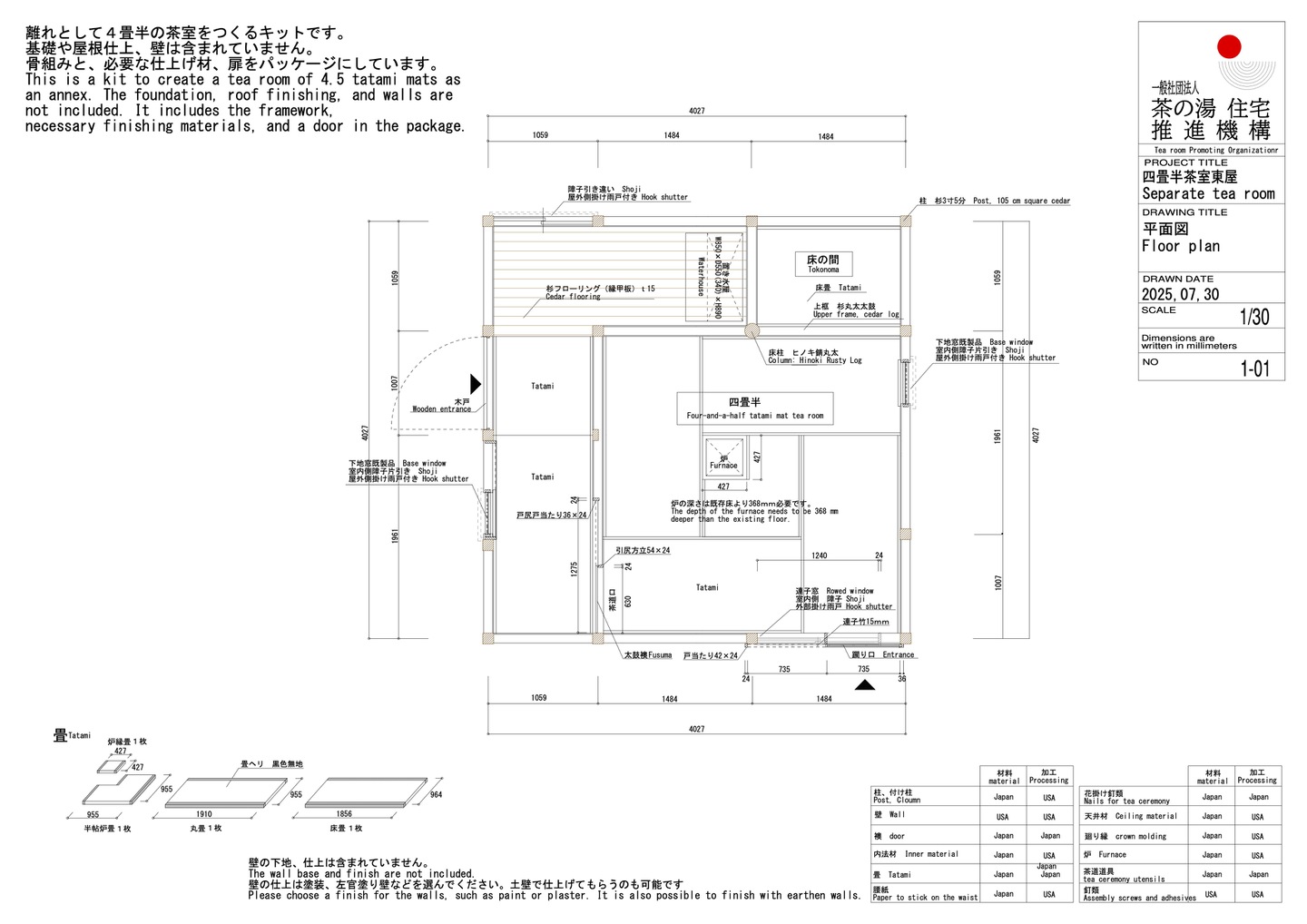
PLAN 1 Build a tea room in your garden.

 

 
 

This is an image photo and may differ from the actual product

 
 

 

It is a small tea room measuring 16 square meters, including a 4.5 tatami mat tea room, a space for preparing tea, and a passageway