Japanese Tea Room
U.S. Sales

Tea Ceremony — Elegant Web Section

Japanese Culture

The Tea Ceremony

An intimate practice of hospitality, aesthetics, and mindfulness.

The tea ceremony is a traditional Japanese culture in which guests are entertained by being served a meal and matcha tea is prepared and served in front of them. It is also said to be a comprehensive art form, as it requires not only knowledge of tea but also a deep knowledge of hanging scrolls, flowers, pottery, and tools.
Chadō Matcha Wabi-sabi
Packages

Casual Tea Room Experiences

Choose a lighter, faster way to bring Chadō into your life.

Home Tea Room Kit

Recreate a tea room inside your current home for a refined, intimate experience.

Garden Assembly Kit

Assemble a small tea room in your garden for outdoor gatherings and seasonal ceremonies.

  • Materials crafted by artisans in Kyoto—the home of the tea ceremony—and in Matsuyama City, home to Dōgo Onsen, Japan’s oldest hot spring and an inspiration for the bathhouse in Studio Ghibli’s Spirited Away.
  • Please request assembly from a craftsman experienced with wooden frame construction (e.g., Timber Frame Guild professionals).
  • We also offer complete tea ceremony kits so you can enjoy the ceremony right away.
Not included: electrical work, lighting fixtures, or plumbing.
Custom Orders Square Pillars

If you would like options beyond these packages, please contact us. The standard package uses square pillars with subtly chamfered (surfaced) corners.


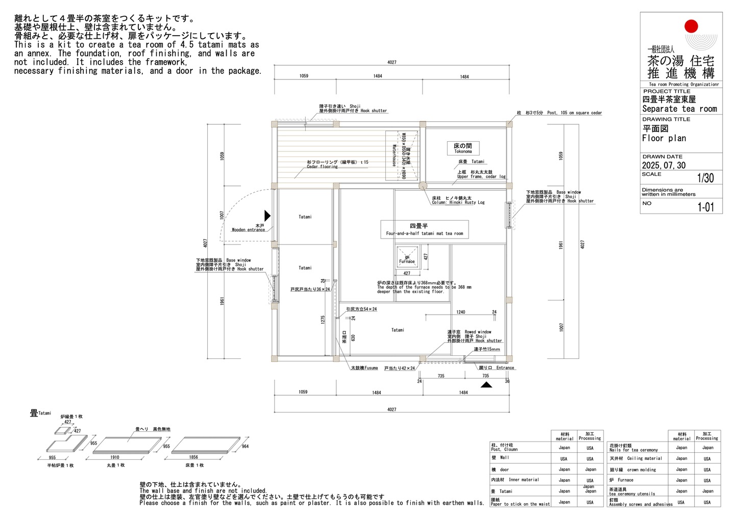
PLAN 1 Build a tea room in your garden.

 

 
 
 

This is an image photo and may differ from the actual product

 
 

 

It is a small tea room measuring 16 square meters, including a 4.5 tatami mat tea room, a space for preparing tea, and a passageway


PLAN 1 — Build a Tea Room in Your Garden

The base, pillars, and beams will be temporarily assembled and then disassembled before shipping, so please assemble them on-site. Foundation, roof finish, and walls are not included. The roof should be covered with copper sheets, and the walls should be finished with earthen walls or drywall. Stones for the entrance are not included, so try placing this tea room appropriately within your garden. While it can be used for tea practice, it is also ideal for hosting guests for tea.

Please also consider purchasing the hearth set (ro), the portable mizuyas (preparation areas), and a tool set of tea utensils.


 

Download the drawing here.

 
 

Made in
Kyoto and Tokyo ,

PLAN1 Price


Main body price

tool set price Grand total
Please contact us  B set   Please contact us
 C set  
 D set              
 E set  
 F set  
 G set  
 

It's okay if you don't have the G set.
The amount may vary depending on exchange rates and customsduties.Materials may be subject to Change depending on availability

PLAN1 Price

Main
body
price
tool
set
price
Grand
total
Please
contact
us
B set        Please
contact
us
C set  
D set  
E set  
F set  
G set  
 

It's okay if you don't have the G set.
The amount may vary depending on exchange rates and customsduties.Materials may be subject to Change depending on availability


PLAN 2 Buildon 8-tatami tea roon in the house you currently own.

 

 
 

This is an image photo and may differ from the actual product

 
 

 


PLAN 2 — Build a Tea Room in Your Home

The pillars are made long, so please cut them to fit the ceiling height of your room. Walls are not included. The ceiling and alcove are made of materials only, so cut them and assemble them. Tatami mats and fixtures will be delivered as finished products. Cut the paper to size and stick it to the wall with glue.

Please also consider purchasing the hearth set (ro), the portable mizuyas (preparation areas), and a tool set of tea utensils.

Download the drawing here.

 
 

Made in
Kyoto and Tokyo ,

PLAN2 Price


Main body price

tool set price Grand total
Please contact us  B set   Please contact us
 C set  
 D set              
 E set  
 F set  
 G set  
 

It's okay if you don't have the G set.
The amount may vary depending on exchange rates and customsduties.Materials may be subject to Change depending on availability

PLAN2 Price

Main
body
price
tool
set
price
Grand
total
Please
contact
us
B set        Please
contact
us
C set  
D set  
E set  
F set  
G set  
 

It's okay if you don't have the G set.
The amount may vary depending on exchange rates and customsduties.Materials may be subject to Change depending on availability

Tool set of tea utensils.


 

 

This is an image photo and may differ from the actual product
 

Download the list here.

 
 
The amount may vary depending on exchange rates and
customsduties.Materials may be subject to Change depending on
availability
 
 
Please contact us at the address below for inquiries